風機隔音罩是一種有效降低高噪聲設備噪聲的隔聲措施,它把噪聲較大的設備裝置封閉起來,可以有效地阻隔高噪聲設備噪聲的外傳,減少噪聲對環境的影響。
風機隔音罩是一種有效降低高噪聲設備噪聲的隔聲措施,它把噪聲較大的設備裝置封閉起來,可以有效地阻隔高噪聲設備噪聲的外傳,減少噪聲對環境的影響。有時會給設備維修、監視、管路布置等帶來不便,并且不利于所罩裝置的散熱,大部分需要通風設施以冷卻罩內的空氣。
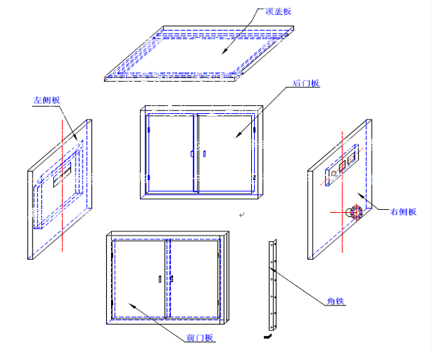
錦工風機隔音罩特點:錦工機械生產制作的隔聲罩由隔聲構件和支撐結構組成。根據不同要求,隔音罩壁采用1.5-2mm的鍍鋅鋼板、鋁板等金屬材料。隔聲罩采用模塊化設計,方便運輸,適合現場安裝,便于維護檢修。可根據不同的使用要求安裝透視門/窗、照明設備、通風換熱系統等,并可按要求定做不同尺寸,涂裝各種外觀顏色。
錦工風機隔音罩應用:適用于降低各類鼓風機、引風機、發電機、空壓機、變壓器、粉碎機、球磨機、電動機、水泵、木工機械、印刷等設備的噪聲。作為高噪聲車間的控制室,可減少噪聲對人體的危害。同時配備有通風降溫、散熱裝置和進、排風消聲器等,保證設備正常工作。我公司可獨立完成隔聲罩的設計、制造、安裝等工作;有沖床隔聲罩、羅茨風機、離心風機隔聲罩等成功工程案例。

錦工風機隔音罩效果:根據隔聲罩的形式,一般能獲得10-30dB的隔聲量。
風機噪聲治理措施:風機噪聲治理除考慮風口噪聲外,根據現場情況,風機的機體噪聲和振動的固體聲傳聲也應予以重視。由于風機工作時發出很大的噪聲,而且風機噪聲還隨著風量和風壓的增大而提高。通常解決風機噪聲問題的方法有以下幾種:
(1)機殼及電機的噪聲可以通過加裝隔聲罩來解決,將風機置于獨立的風機隔聲間內,在風機間內進行吸聲、隔聲處理。
(2)在風機排風口外安裝消音器,內置消聲插片,使噪聲在通過特殊構造能不斷削減。消音器是降低空氣動力設備進、排氣口輻射或沿管傳遞噪聲的有效措施。
(3)地面層外百葉窗盡可能使用消聲百葉。
(4)風機吊掛采用阻尼彈簧吊架減振器。
(5)對風機基礎進行整體隔振處理。
相關文章閱讀:
此外,還可以通過風機選型系統查詢回轉風機價格,如下圖客戶僅需輸入風量、選擇風壓,就可以方便、快速、準確、可靠地進行羅茨鼓風機、回轉式鼓風機等各類容積式風機的選型和價格查詢工作。風機選型系統地址:http://m.qhdhdjx.cn/search.php
山東錦工有限公司
